Villa moderne réf: moderne villa avec piscine
Référence : 90798
Type de l‘annonce : Vente
Type du bien : Villa
[Agence immobilière] 28605016
Villa à vendre à Hammamet
Villa MODERNE (Réf: V1084)
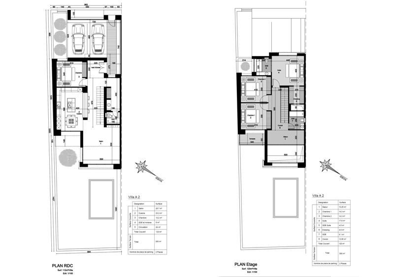
A vendre chez l’agence TPS Immobilière Hammamet, une villa de style moderne en cours de finition, de 240m² couvert sur un terrain de 300m² à Hammamet en Face de l’hôtel Ribat.
La villa est érigée sur deux niveaux, elle comporte au rez de chaussé un salon-séjour avec une cheminée (éthanol), une cuisine moderne ouverte, une salle de bain et une chambre à coucher.
Quant à l’étage, il se compose d'une suite parentale, deux chambres à coucher avec une terrasse, un séjour avec vide sur salon et une salle de bain.
La villa est équipée de chauffage central, de climatisations, d’un système d’alarme, de vidéo surveillance, d’un abri pour deux voiture, une piscine et un joli jardin.
Veuillez contacter Mme Nesrine: 28605016 / 52631000
#Mme Nesrine#28605016#
Nombre de salle(s) de bain :
Nombre de salle(s) d'eau :
Année de Construction :
Surface habitable : 240 m²
Surface Totale : 300 m²
Nombre de place de Voiture :
Numéro / Nombre d'étages :
Orientation :
Caractéristiques :









Villa + 3 Appartements à hammamet
Vente Villa Hanna
Vente Villa Racha